在軌道交通、大型地下管網等工程中盾構作業的端頭和接收端的地基穩定是保障盾構順利推進的重要基礎條件之一,常規的地基加固工法有多軸攪拌和高壓旋噴注漿等方式,這兩種方式對復雜地質、超深加固施工都有其局限型,特別是對地層起伏較大、分布不規律的軟基地質容易出現攪拌或噴射不均勻導致加固的地基整體強度低和不穩定情況,對盾構作業區域的施工帶來相應的隱患。這就需要一種既能應對復雜地質條件又能保證盾構端頭作業范圍地基穩定可靠的加固工藝和設備對傳統方式的替代。

日前,浙江土工巖土科技有限公司在海太長江隧道工程主體項目HT-A3標施工中,采用上海金泰CSM工法設備對多軸鉆機的替代嘗試,為地基加固施工創新應用貢獻了又一個典型案例。

海太長江隧道工程主體項目HT-A3標

海太長江隧道工程主體項目HT-A3標(開挖效果展示)
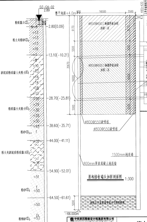
據浙江土工巖土科技有限公司海太長江隧道(公路部分)HT-A3標段項目資料顯示:該工程地質條件復雜,各土層埋深不一、層厚多變,且土層性狀差異顯著,地基的均勻性較差,整體強度低,自穩能力不足,且加固深度最深要達到35.6米,對加固工藝提出了巨大挑戰。鑒于三軸或高壓旋噴工法在復雜地質條件下可能存在的局限性,浙江土工巖土科技有限公司的技術人員重點關注了上海金泰的SC液壓銑削攪拌鉆機,經過多方比對論證最終確認采用該工法裝備施工。

海太長江隧道(公路部分)HT-A3標段項目
(地層報告)
早在2011年,上海金泰就率先研發了CSM工法施工裝備——SC系列液壓銑削攪拌鉆機,經過十多年的不斷創新升級,形成了步履電液、履帶電液、履帶油液三種主機平臺、油電兩種動力組合的系列化產品,得到行業內的廣泛認可,上海金泰的CSM工法產品在技術性能、施工效率、應用范圍表現卓越,是國內CSM工法領域領先者。

在浙江土工巖土科技有限公司項目階段性報告中對上海金泰SC液壓銑削攪拌鉆機和工法是這樣評價的:經過海太長江隧道(公路部分)工程主體施工項目HT-A3標的實踐證明,雙輪攪攪拌墻作為一種新型的地基基礎施工工法,其施工高效、環境友好、適應性強、質量可靠等特點,使得雙輪攪攪拌墻成為盾構端頭加固的理想選擇,雙輪攪攪拌加固成功替代了原設計的三軸攪拌加固,并取得了良好的加固效果,驗證了其在實際工程中的可行性和有效性。未來,隨著技術的不斷進步和施工需求的多樣化,雙輪攪拌工法有望在更多領域得到推廣和應用。